广佛喝茶资源,一线天同城平台,上海喝茶外卖微信wx,全国少女空降200全国空降少女app

您好,欢迎进入河南省中原奥起实业有限公司官方网站!

与时俱进,诚赢客户

龙门吊、提梁机、门式起重机生产厂家

服务电话:13782575673

起重机产品问答

您现在所在位置:首页>>起重资讯>>起重机产品问答

欧式起重机大车的结构形式

本文链接:http://m.ftbamj.cn/cjwt/520.html???发布时间:2021-03-06 02:38:30??点击量:1808

  一、从小车轨道的固定位置来分,大车结构有三种结构型式

  国外欧式起重机不论吨位大小,主梁上的小车轨道一律采用全偏轨。国内传统桥式起重机之所以采用中轨,主要是国内的制造工艺不能完全保证全偏轨主梁的扭曲,基于这种原因和笔者多年的设计经验,对大车结构的小车轨道采用以下三种结构型式以共设计者参考。

  (1)半偏轨主梁,推荐对5~50t小欧式起重机采用(图4-1)。

  (2)全偏轨主梁,推荐对63~300t中欧式起重机采用(图4-2、图4-7)。

  (3)半偏轨加全偏轨组合主梁,推荐对大于300t大欧式起重机采用(图4-3)。

  二、从小车轨道的数量来分,大车结构有两种结构型式

  (1)双梁双轨主梁(图4-7),小欧、中欧大车结构都是这种类型主梁。

  (2)双梁4轨主梁(图4-8),只有大于300t的大欧大车结构才采用这种类型主梁。

  三、从跨端的腹板外型来分,大车结构有两种结构型式

  (1)跨端的腹板成120°的主梁,其特点是可以节省材料,但制作较麻烦,推荐对5~50t小欧式大车采用(图4-9),电气控制柜摆放在走台上。
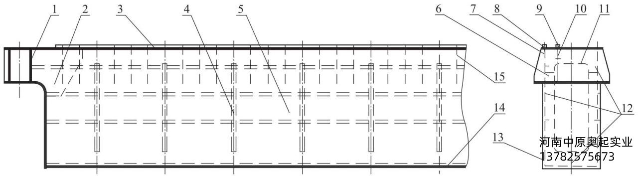
图4-8大欧式半偏轨加全偏轨组合主梁

图4-8大欧式半偏轨加全偏轨组合主梁

  1—承压梁衬板;2—承压梁加强板;3—上盖板;4—大隔板;5—副腹板;6—承压梁端板;7—外三角筋板;8—主轨道;9—副轨道;10—副轨道支承梁;11—大隔板加强条;12—纵向加强筋;13—主腹板;14—下盖板;15—短横隔板
图4-9小欧式大车主梁

图4-9小欧式大车主梁

  (2)跨端的腹板成90°的主梁,推荐对63~300t中欧式和大于300t大欧式的大车采用(图4-4和图4-7),电气控制柜摆放在主梁里。

  四、从跨中的腹板外型来分,大车结构有两种结构型式

  (1)实腹型主梁,推荐对5~50t小欧式大车和150t以下的中欧式(低净空)大车采用实腹型主梁。

  (2)空腹型主梁,为了减轻主梁的重量,在主梁的副腹板上均匀挖洞,推荐对150t以上的中欧式(低净空)和>300t的大欧式采用空腹型主梁(图4-10)。

  五、从操纵室的控制方式来分,大车结构有三种结构型式

  (1)带司机室的大车(司机室分为开式和闭式,现代的室内起重机由于噪声和粉尘的影响,用户都要求有舒适的操作环境,一般很少再用开式司机室),根据用户的要求是否设置司机室带司机室的大车又分为固定式和移动式司机室,一般对跨度大的起重机采用移动式司机室带司机室的大车都带斜梯,由司机室平台通过斜梯达到主梁上面。

  (2)不带司机室的大车,用地操的控制方式操纵,一般只对5~50t小欧式大车采用地操控制方式。

  (3)带司机室加遥控的大车,为了现场的操作方便,同时采用司机室加??氐目刂品绞?。

  六、从走台的设置来分,大车结构有两种结构型式

  (1)设置专用走台的大车,一般对5~50t小欧式大车采用,在导电主梁对侧要求设置专用走台(图4-1);对63~125t中欧式(低净空)大车,可以设置专用走台,也可以不设置专用走台,推荐设置走台;对>300t的大欧式(双梁4轨)大车根据主梁的宽度设计专用走台,设置的原则是*大化减轻大车的自重。

  (2)不设置专用走台的大车,对≥125t的中欧式(低净空)大车,推荐取消专用走台,用主梁兼做走台,把电气控制柜放在主梁里。

  七、大车的结构型式

  从大车端梁的结构来分,大车结构有两种结构型式。

  (1)带台车端梁的大车,对160t以上中欧式大车和大于300t的大欧式大车,推荐大车端梁采用带台车结构型式(图4-11),大车的每一个角采用两组台车四个车轮的结构型式。
图4-11带台车端梁

图4-11带台车端梁

  (2)不带台车端梁的大车,对5~50t的小欧式大车,其端梁一律不带台车;对63~125t中欧式大车,当车轮直径不超过500mm时,推荐不带台车,当车轮直径超过500mm时,推荐采用带台车端梁。

文章聚合页面: 欧式起重机 欧式大车

联系我们

CONTACT US

联系人:徐经理

手机:13782575673

电话:0373-8611375

邮箱:hnzyaqqz@126.com

官网:m.ftbamj.cn

地址:河南长垣起重工业园区华豫大道中段