广佛喝茶资源,一线天同城平台,上海喝茶外卖微信wx,全国少女空降200全国空降少女app

您好,欢迎进入河南省中原奥起实业有限公司官方网站!

与时俱进,诚赢客户

龙门吊、提梁机、门式起重机生产厂家

服务电话:13782575673

技术资料

您现在所在位置:首页>>技术资料>>?5/5~16/16吨QN型抓斗起重机、吊钩双用桥式起重机性能参数

?5/5~16/16吨QN型抓斗起重机、吊钩双用桥式起重机性能参数

本文链接:http://m.ftbamj.cn/jszc/1352.html???发布时间:2022-01-21 09:24:36??点击量:1876

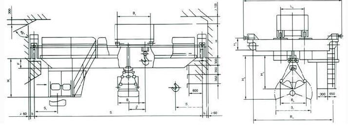
  QN型抓斗吊钩双用桥式起重机是在盘料场地应用较多的一种双梁桥式起重机,型号规格为QN,这类起重设备既可应用抓斗起重机爬取各种团状原材料,也可运用起重吊钩吊取别的吊物。我为各位详细介绍下5/5吨、10/10吨、16/16吨抓斗起重机起重吊钩双用桥式起重机的性能参数。

  QN型抓斗吊钩双用桥式起重机结构图

QN型抓斗吊钩双用桥式起重机结构图

  QN型抓斗吊钩双用桥式起重机性能参数图

QN型抓斗吊钩双用桥式起重机性能参数图

文章聚合页面: 桥式起重机 抓斗起重机

技术资料

联系我们

CONTACT US

联系人:徐经理

手机:13782575673

电话:0373-8611375

邮箱:hnzyaqqz@126.com

官网:m.ftbamj.cn

地址:河南长垣起重工业园区华豫大道中段