广佛喝茶资源,一线天同城平台,上海喝茶外卖微信wx,全国少女空降200全国空降少女app

您好,欢迎进入河南省中原奥起实业有限公司官方网站!

与时俱进,诚赢客户

龙门吊、提梁机、门式起重机生产厂家

服务电话:13782575673

技术资料

您现在所在位置:首页>>技术资料>>32吨电动式单梁起重机性能参数

32吨电动式单梁起重机性能参数

本文链接:http://m.ftbamj.cn/jszc/1395.html???发布时间:2022-01-24 11:26:43??点击量:2511

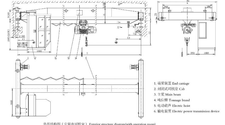
  32吨电动式单梁起重机就是指额定值吊重为32吨的LD型电动式单梁起重机。该吨数的单梁起重机在现实制造中运用较少,我为各位共享下32吨电动式单梁起重机性能参数。

  32吨电动式单梁起重机结构图

32吨电动式单梁起重机性能参数

  32吨电动式单梁起重机参数图

32吨电动式单梁起重机性能参数

文章聚合页面: 32吨 起重机参数

技术资料

联系我们

CONTACT US

联系人:徐经理

手机:13782575673

电话:0373-8611375

邮箱:hnzyaqqz@126.com

官网:m.ftbamj.cn

地址:河南长垣起重工业园区华豫大道中段